一个高档酒店项目的成功开发,涉及到5大不同的专业主体,都有谁?他们都干些啥?先后顺序如何?下面我们一一道来。
开发商投资部门
负责取得酒店类项目土地开发权
主要把控和推进这2件事儿
可行性研究:土地市场出现含酒店的土地项目,业主方投资部门介入,进行获取项目的可行性研究,以及购买价格评估。
获得土地开发权:业主方投资部门通过招拍挂、旧改、收购等方式获得土地开发权。
这个阶段的酒店画面是这样的 ↓(嗯,它就是一块地)
酒店顾问公司
酒店顾问公司提供的主要服务有3项:
定位策划研究:根据项目所属城市区位、资源条件等属性,对项目档次类型、功能规划、运营亮点、投资回收测算等内容进行策划。
设计任务书:将酒店功能规划细化,形成指导设计工作的任务书。
酒店品牌筛选:寻找与项目形象定位匹配的酒店集团和品牌。
我们常开玩笑说,酒店顾问公司是为项目指路的“智者”,主要作用就是:定(方)向、省时(间)、省(金)钱。尤其是对于酒店开发经验不足的业主来说,聘请酒店咨询公司必不可少,而且应该走在管理公司和设计公司的前面。
这个阶段的成果的画面是这样的
酒店顾问公司
酒店顾问公司设计这个口吧,是很操心的。别的可以不懂,设计方案的颜色啊风格啊这些谁都觉得有话说。所以,这个阶段的跟进很考验专业性,当然,找好的设计公司也是至关重要的。应该说,各个领域都有实力不凡的设计单位。
1. 概念设计阶段:主要确定设计风格和整体效果,以及核心技术参数,主要包含建筑设计、室内装饰设计、餐饮室内设计、机电设计、园林设计、厨房洗衣房设计、泳池水景设计、SPA设计、灯光设计、消防安全设计、音视频和声学设计、标识标牌设计、艺术品设计等,设计的关键成果需获得酒店运营方认可。
这个阶段的酒店画面(部分)是这样的

2. 扩初图阶段:主要由当地设计院和室内设计公司共同完成,主要工作内容为确认建筑平面、确定功能区域及房间面积、确定机电系统竖向位置和平面布置、确定隔墙位置、材料小样、尺寸、地面、立面、天花、节点大样等。
这个阶段的酒店画面(部分)是这样的

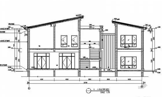
3. 施工图阶段:主要由当地设计院、室内设计公司和专项设计公司协同完成,主要确认施工工艺、隔音节点、二次机电、管线综合、天花综合等,收边收口等细节内容在图纸上表达,能够达到施工标准。
这个阶段的酒店画面(部分)是这样的
建设单位
建设单位这部分太专(ku)业(zao),大家努力看看吧
业主方通常通过总包和分包的形式完成酒店项目的土建、内装、机电安装、消防、暖通、园林等建设工作。
按照项目资金来源的不同,各施工单位的确定,分为公开招标和邀请招标等不同形式。
按照业主自身供应商库规模发包形式也分为全包、甲供材、甲指乙供等不同组合形式。
根据业主项目管理形式也分为固定单价和固定总价等不同合同形式。
按业主审计部门的能力可以考虑自行审计和第三方审计等不同形式。
设计总包单位太多了,中铁、铁建、中外建等等,但聚焦到酒店这个专业上来说,主要是洪涛、金螳螂、深广田3家
这个阶段的酒店画面是这样的
运营方
运营方国际传统5大酒店集团有万豪、洲际、希尔顿、凯悦、雅高。
筹备开业:酒店开业前12个月,筹备团队进场,全面启动项目的筹开工作,主要包括人员招聘、物资采购、证照办理、市场调研等。
正式运营:业主方择良辰吉日举行酒店开业庆典,正式投入运营。
资产管理:通过不断优化产品和服务,提升运营效率,增加净现金流,继而带动资产升值。
各位看官请注意,酒店管理公司跟前面的顾问公司、设计公司、施工单位可不一样,前面的还可以简单粗暴的说是一锤子买卖,品牌可是要跟开发商一起过日子的。
酒店项目开发流程图解
